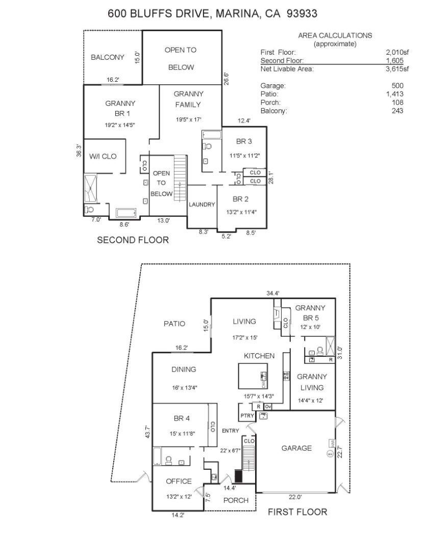
A rare and versatile offering, this expansive residence presents a truly unique opportunity for multigenerational living or income-producing potential, featuring two private granny suites thoughtfully integrated into the homes design.An impressive array of upgrades enhances the property, including an owned solar system with 34 panels producing approximately 14+ kW of power, paired with 8Â backup battery banks providing 24 kWh of stored energy. The main living area features a gas fireplace and each room with its own ceiling fans. The entire second level has been upgraded with new high-end flooring, complemented by a spacious loft offering additional flexibility. Seamlessly extending the living space outdoors, the California Room creates a covered patio experience complete with exterior electrical and gas hookups, ideal for entertaining or everyday enjoyment. This is a one-of-a-kind opportunity combining space, flexibility, and thoughtful upgrades in a truly exceptional setting. Ideally located near shopping, restaurants with convenient highway access and is just minutes from Carmel and all that the Monterey Peninsula has to offer.
Compare listings
Compare