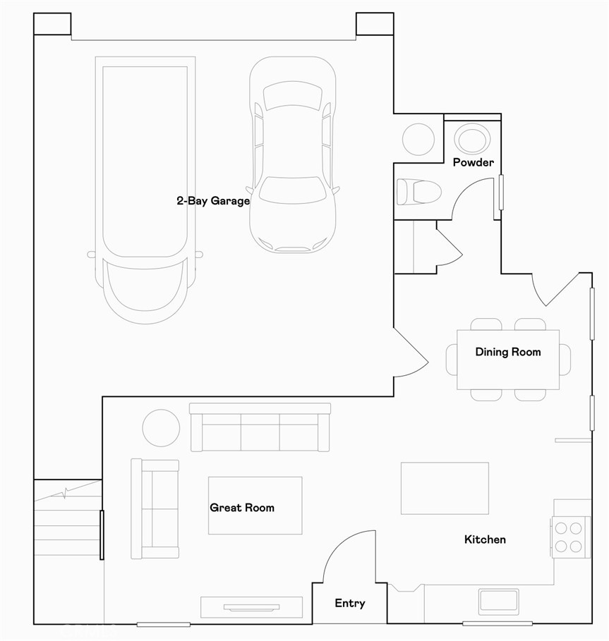
NEW CONSTRUCTION! Includes upgraded flooring! This new two-story home provides a modern and inviting layout. The first floor features an open-concept floorplan shared between the kitchen, dining room and Great Room. All three bedrooms are located on the second floor, including the luxe owner’s suite with a full bathroom, surrounding a versatile loft. A two-bay garage completes the home. Tailwind is a new collection of single-family homes at the Renaissance masterplan, now selling in Rialto, CA. This gated community offers fantastic onsite amenities, including a relaxing swimming pool, playground, dog park, tot lot and much more. Homeowners will be a short drive from shopping, dining and entertainment at the Renaissance Marketplace. Renaissance boasts a prime location near the I-210 and I-15 freeways, providing easy commutes to Los Angeles, San Bernardino and other surrounding areas. The community is conveniently located near top universities such as California State University, San Bernardino (CSUSB) and the University of California, Riverside (UCR), offering excellent opportunities for higher education.
Compare listings
Compare